Tầng 6 - 26 (tòa Nam)
.webp)
.webp)
.webp)
.webp)
.webp)
.webp)
.webp)
.webp)
.webp)
.webp)
.webp)
.webp)
Tầng 6 - 26 (tòa Nam)
.webp)
-l.webp)
-m.webp)
Thiết kế C2
Diện tích tim tường/GFA:
51.00 m2
Diện tích thông thủy/NFA:
47.04 m2
Phòng ngủ 1 / bedroom 1: 8.8 m2
Phòng ngủ 2 / bedroom 2: 7.1 m2
Phòng khách & bếp / living room: 21.3 m2
Tòa CT2: căn số 05
.webp)
.webp)
Thiết kế B6
Diện tích tim tường/GFA:
78.11 m2
Diện tích thông thủy/NFA:
73.08 m2
Phòng ngủ 1 / bedroom 1: 12.8 m2
Phòng ngủ 2 / bedroom 2: 11.3 m2
Phòng khách & bếp / living room: 26.8 m2
Tòa CT2: căn số 06
.webp)
.webp)
Thiết kế B7
Diện tích tim tường/GFA:
78.72 m2
Diện tích thông thủy/NFA:
74.36 m2
Phòng ngủ 1 / bedroom 1: 12.9 m2
Phòng ngủ 2 / bedroom 2: 12.2 m2
Phòng khách & bếp / living room: 27.8 m2
Tòa CT2: căn số 03
.webp)
.webp)
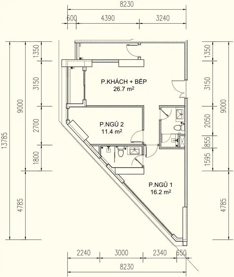
Thiết kế B5
Diện tích tim tường/GFA:
82.52 m2
Diện tích thông thủy/NFA:
75.52 m2
Phòng ngủ 1 / bedroom 1: 16.2 m2
Phòng ngủ 2 / bedroom 2: 11.4 m2
Phòng khách & bếp / living room: 26.7 m2
Tòa CT2: căn số 01
.webp)
.webp)
Thiết kế B4
Diện tích tim tường/GFA:
81.55 m2
Diện tích thông thủy/NFA:
76.61 m2
Phòng ngủ 1 / bedroom 1: 13.8 m2
Phòng ngủ 2 / bedroom 2: 12.3 m2
Phòng khách & bếp / living room: 29.1 m2
Tòa CT2: căn số 02
.webp)
.webp)
Thiết kế B2 - 1
Diện tích tim tường/GFA:
82.20 m2
Diện tích thông thủy/NFA:
76.86 m2
Phòng ngủ 1 / bedroom 1: 14.1 m2
Phòng ngủ 2 / bedroom 2: 9.9 m2
Phòng khách & bếp / living room: 30.8 m2
Tòa CT2: căn số 07,09
.webp)
.webp)
Thiết kế B2 - 2
Diện tích tim tường/GFA:
82.24 m2
Diện tích thông thủy/NFA:
76.86 m2
Phòng ngủ 1 / bedroom 1: 12.7 m2
Phòng ngủ 2 / bedroom 2: 11.8 m2
Phòng khách & bếp / living room: 30.0 m2
Tòa CT2: căn số 10
.webp)
.webp)
Thiết kế B2 - 3
Diện tích tim tường/GFA:
83.24 m2
Diện tích thông thủy/NFA:
77.10 m2
Phòng ngủ 1 / bedroom 1: 12.9 m2
Phòng ngủ 2 / bedroom 2: 12.2 m2
Phòng khách & bếp / living room: 29.6 m2
Tòa CT2: căn số 11
.webp)
.webp)
Thiết kế B1 - 1
Diện tích tim tường/GFA:
83.24 m2
Diện tích thông thủy/NFA:
77.10 m2
Phòng ngủ 1 / bedroom 1: 12.9 m2
Phòng ngủ 2 / bedroom 2: 12.2 m2
Phòng khách & bếp / living room: 29.6 m2
Tòa CT2: căn số 12
.webp)
.webp)
Thiết kế B1
Diện tích tim tường/GFA:
88.50 m2
Diện tích thông thủy/NFA:
84.34 m2
Phòng ngủ 1 / bedroom 1: 13.3 m2
Phòng ngủ 2 / bedroom 2: 12.9 m2
Phòng khách & bếp / living room: 33.5 m2
Tòa CT2: căn số 12
.webp)
.webp)
Thiết kế B9 - G
Diện tích tim tường/GFA:
73.71 m2
Diện tích thông thủy/NFA:
67.87 m2
Diện tích tim tường vườn/GFA:
9.59 m2
Diện tích thông thủy vườn/NFA:
8.52 m2
Phòng ngủ 1 / bedroom 1: 13.5 m2
Phòng ngủ 2 / bedroom 2: 13.3 m2
Phòng khách & bếp / living room: 25.3 m2
Tòa CT2: căn số 20 (Tầng 05)
.webp)
.webp)
Thiết kế B3 - G
Diện tích tim tường/GFA:
84.25 m2
Diện tích thông thủy/NFA:
78.96 m2
Diện tích tim tường vườn/GFA:
85.19 m2
Diện tích thông thủy/NFA:
83.77 m2
Phòng ngủ 1 / bedroom 1: 13.6 m2
Phòng ngủ 2 / bedroom 2: 13.4 m2
Phòng khách & bếp / living room: 29.8 m2
Tòa CT2: căn số 15,17
.webp)
.webp)
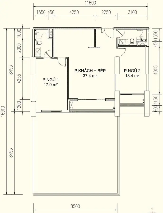
Thiết kế B8 - G
Diện tích tim tường/GFA:
96.35 m2
Diện tích thông thủy/NFA:
90.35 m2
Diện tích tim tường vườn/GFA:
72.83 m2
Diện tích thông thủy/NFA:
71.58 m2
Phòng ngủ 1 / bedroom 1: 17 m2
Phòng ngủ 2 / bedroom 2: 13.4 m2
Phòng khách & bếp / living room: 37.4 m2
Tòa CT2: căn số 14
.webp)
.webp)